FLOOR MAPBANQUET
- HOTEL TOP
- CONFERENCES & EVENTS
- FLOOR MAP
B1F

1F

29F

2F

3F

2-3F Atrium







BANQUET HALL LIST
-
B1F

BallroomPalais Royal
Size : 2,580m²
Ceiling height : Main Room 8.0m Front Room 3.0m -
B1F

Banquet Hall - MediumVendôme・Étoile・Châtelet
Size : 260m²
Ceiling height : 3m -
B1F

Banquet Hall - SmallFantaisie・Harmonie・Concerto・Menuet
Size : 73~76m²
Ceiling height : 3m -
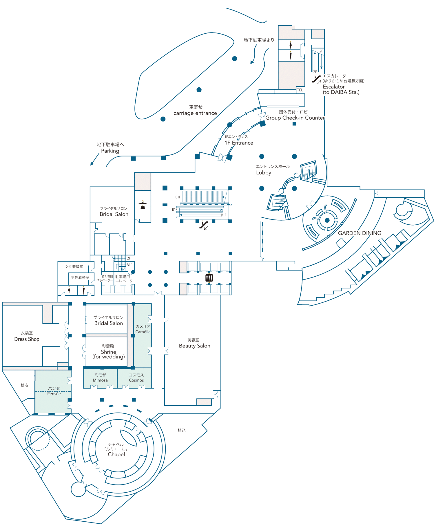
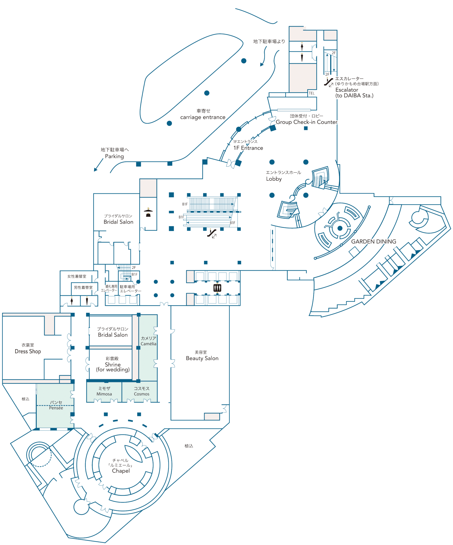
1F

Banquet Hall - SmallPensée・Mimosa・Cosmos・Camélia
Size : 43~102m²
Ceiling height : 3m
*For small and subcommittee meetings -
29F

Banquet Hall - High FloorGinga
Size : 337m²
Ceiling height : 3m -
29F

Banquet Hall - High FloorNiji
Size : 140m²
Ceiling height : 3m -
29F

Banquet Hall - High FloorAkane
Size : 86m²
Ceiling height : 3m -
29F

Banquet Hall - High FloorHikari
Size : 186m²
Ceiling height : 3m -
29F

Banquet Hall - High FloorAkatsuki
Size : 86m²
Ceiling height : 3m -
2-3F

Banquet HallAtrium














