층별 안내도CONFERENCES & EVENTS
- 호텔 탑
- 컨퍼런스 / 이벤트
- 층별 안내도
B1F

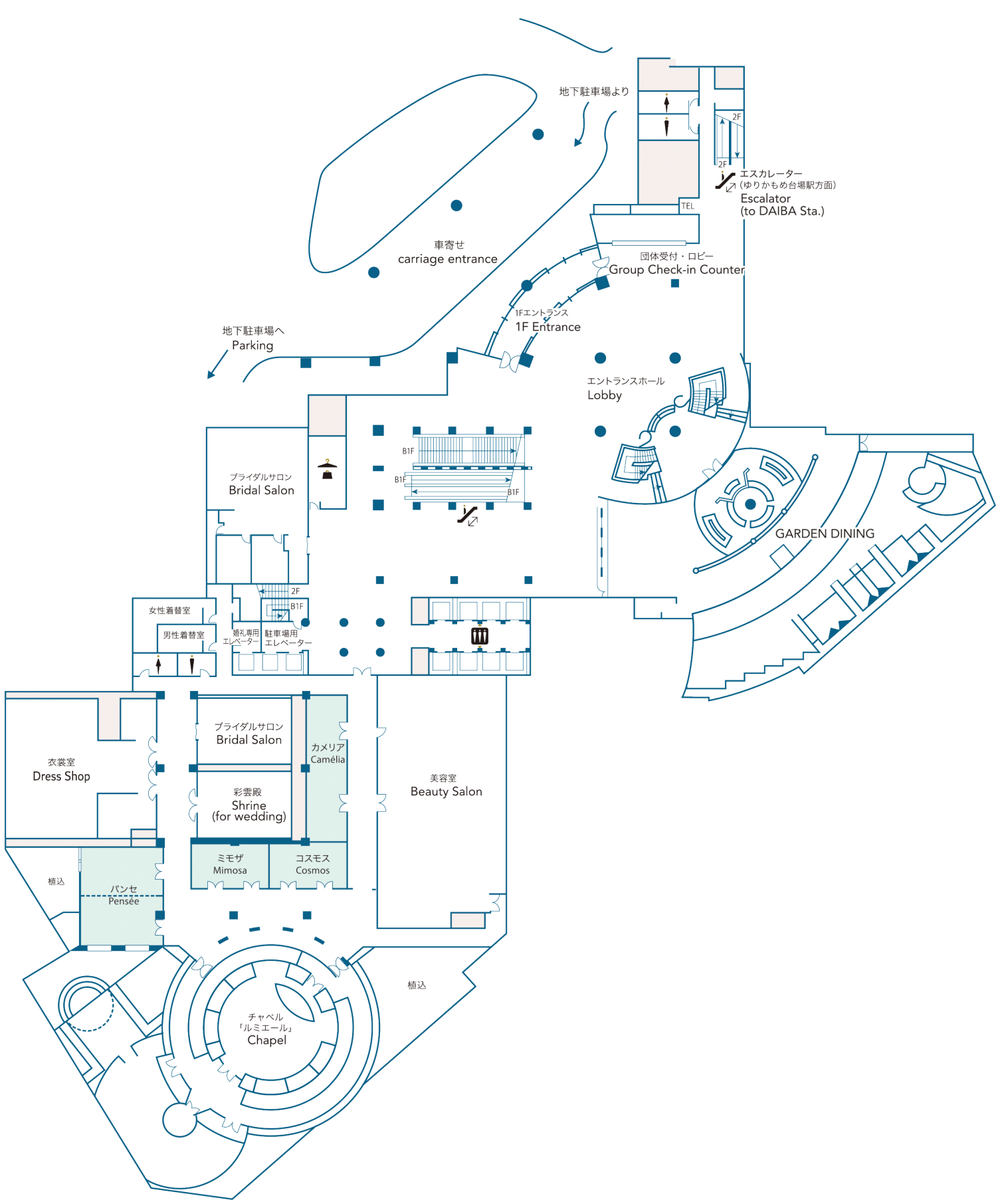
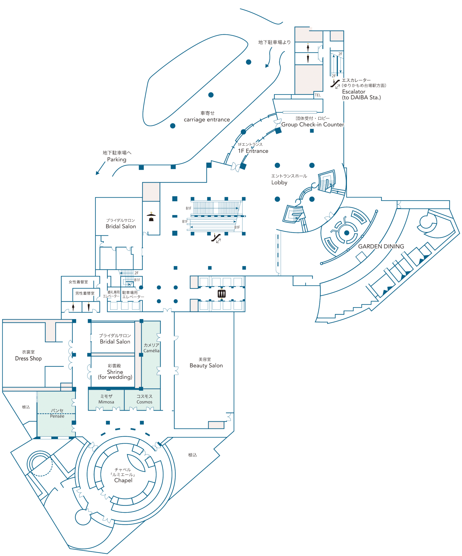
1F

29F

2F

3F

2-3F Atrium







BANQUET HALL LIST
-
B1F

대연회장Palais Royal
크기 : 2,580m²
천장 높이 : 本室 8.0m 前室 3.0m -
B1F

연회장 - 중형Vendôme・Étoile・Châtelet
크기 : 260m²
천장 높이 : 3m -
B1F

연회장 - 소형Fantaisie・Harmonie・Concerto・Menuet
크기 : 73~76m²
천장 높이 : 3m -
1F

연회장 - 소형 Pensée・Mimosa・Cosmos・Camélia
크기 : 43~102m²
천장 높이 : 3m
*소회의,분과회용 -
29F

연회장 - 고층Ginga
크기 : 337m²
천장 높이 : 3m -
29F

연회장 - 고층Niji
크기 : 140m²
천장 높이 : 3m -
29F

연회장 - 고층Akane
크기 : 86m²
천장 높이 : 3m -
29F

연회장 - 고층Hikari
크기 : 186m²
천장 높이 : 3m -
29F

연회장 - 고층Akatsuki
크기 : 86m²
천장 높이 : 3m -
2-3F

Banquet HallAtrium














