樓層地圖CONFERENCES & EVENTS
B1F

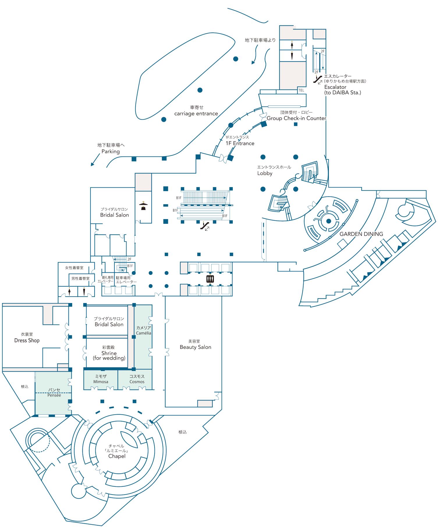
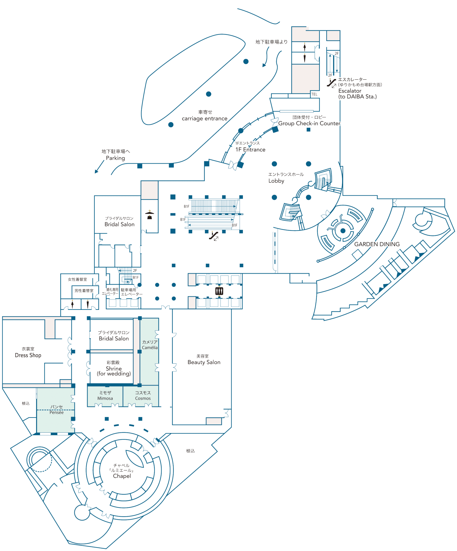
1F

29F

2F

3F

2-3F Atrium







BANQUET HALL LIST
-
B1F

舞廳Palais Royal
面積 : 2,580m²
屋頂高度 : 主廳 8.0m 分間 3.0m -
B1F

宴會廳 - 中型Vendôme・Étoile・Châtelet
面積 : 260m²
屋頂高度 : 3m -
B1F

宴會廳 - 小型Fantaisie・Harmonie・Concerto・Menuet
面積 : 73~76m²
屋頂高度 : 3m -
1F

宴會廳 - 小型 Pensée・Mimosa・Cosmos・Camélia
面積 : 43~102m²
屋頂高度 : 3m
*適合小型會議、小組研討會議 -
29F

宴會廳 - 高樓層銀河(GINGA)
面積 : 337m²
屋頂高度 : 3m -
29F

宴會廳 - 高樓層虹(NIJI)
面積 : 140m²
屋頂高度 : 3m -
29F

宴會廳 - 高樓層茜(AKANE)
面積 : 86m²
屋頂高度 : 3m -
29F

宴會廳 - 高樓層光(HIKARI)
面積 : 186m²
屋頂高度 : 3m -
29F

宴會廳 - 高樓層曉(AKATSUKI)
面積 : 86m²
屋頂高度 : 3m -
2-3F

Banquet HallAtrium














